Crèche parentale Farandole
Paris 20e








Maître d’ouvrage : Association Farandole Localisation : 105 rue Alexandre Dumas, Paris 20è
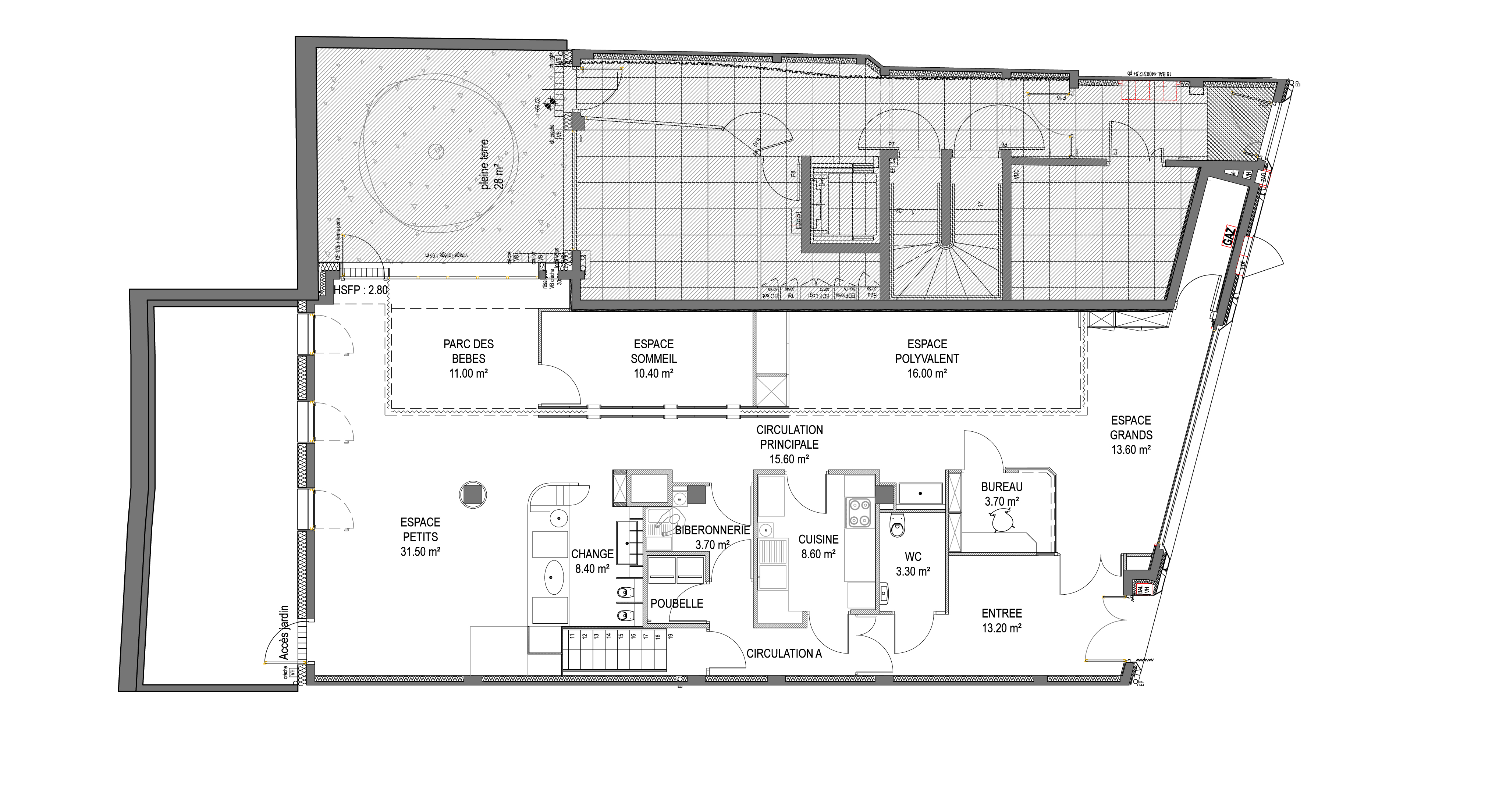
Programme : Aménagement d’une crèche de 20 berceaux
Surface : 240 m²
Mission : Complète MOE
Montant des travaux : 400 000 euros HT
Livraison : Mai 2014
Suite à son expérience personnelle à la crèche parentale Métramômes, réalisée en 2004 par Alternatives Architecture, la présidente de l’association Farandole décide de se lancer dans la création d’une nouvelle structure de 20 berceaux et nous en confie la conception et la réalisation. Le local retenu est situé au rez-de-chaussée et au sous-sol d’un immeuble de logements BBC appartenant au bailleur social de la Ville de Paris. Le projet s’insère dans un immeuble en démarrage de construction et bénéficie de ce fait, de la possibilité d’intégrer les demandes techniques spécifiques liées à ce type d’ERP.
Le projet se déploie sur les deux niveaux : le sous-sol abrite les locaux techniques et les locaux du personnel et le rez-de-chaussée accueille les espaces destinés aux enfants. Ceux-ci sont modulables, par un jeu de rideaux, et multi-fonctionnels afin d’optimiser l’organisation de la vie des enfants, des parents et des professionnels.
Le mobilier, dessiné spécifiquement, participe à l’aménagement des espaces tout en créant un terrain d’éveil pour les enfants. Un espace extérieur participe au projet de l’association grâce notamment à un mini-jardin pédagogique et un espace d’éveil en sol souple.